Popis stavby
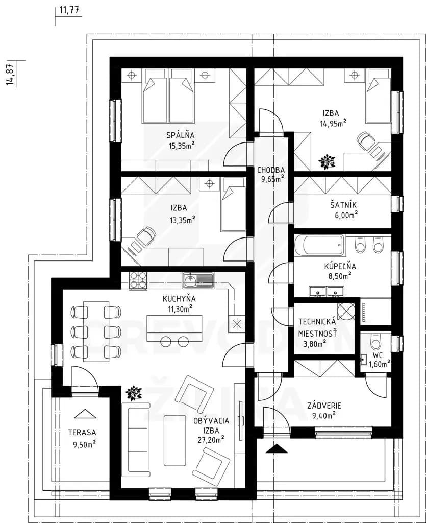
Fenix je jednopodlažný rodinný dom s netradičným riešením strešnej konštrukcie, čo mu dodáva jedinečný vzhľad ako z exteriéru tak i z interiéru. V zadverí je umiestnené samostatné WC a vstavaná skriňa, nasleduje chodba spájajúca všetky ostatné miestnosti v dome, ktorými sú dve izby, spálňa, šatník, priestranná kúpeľňa s WC, technická miestnosť a kuchyňa s obývacou izbou, odkiaľ je priamy prístup na terasu domu.
Pôdorys a pohľady
Projektová dokumentácia
Kompletná projektová dokumentácia obsahuje architektonickú časť, sprievodnú a technickú správu, výkresy v mierke 1:50, a to: pôdorysy všetkých podlaží, pôdorysy základov, výkres krovu a strechy, rezy, pohľady, výkaz stavebných otvorov, vizualizáciu, statiku, vykurovanie, zdravotechniku, elektroinštalácie, vzduchotechniku, tepelno-technický posudok a požiarnu bezpečnosť.
Zmeny v projekte
Radi Vám katalógový projekt prispôsobíme podľa Vašich želaní. Či už ide o väčšie alebo menšie úpravy projektu. Po prekonzultovaní sa dohodneme na najlepšom možnom riešení. Dom z katalógu sa môže teda stať minulosťou, a pomocou individuálneho prístupu a konzultáciou medzi investorom a stavebníkom príde k spoločnej dohode. Úpravy v projektových dokumentáciách riešime osobnými konzultáciami.








