Popis stavby
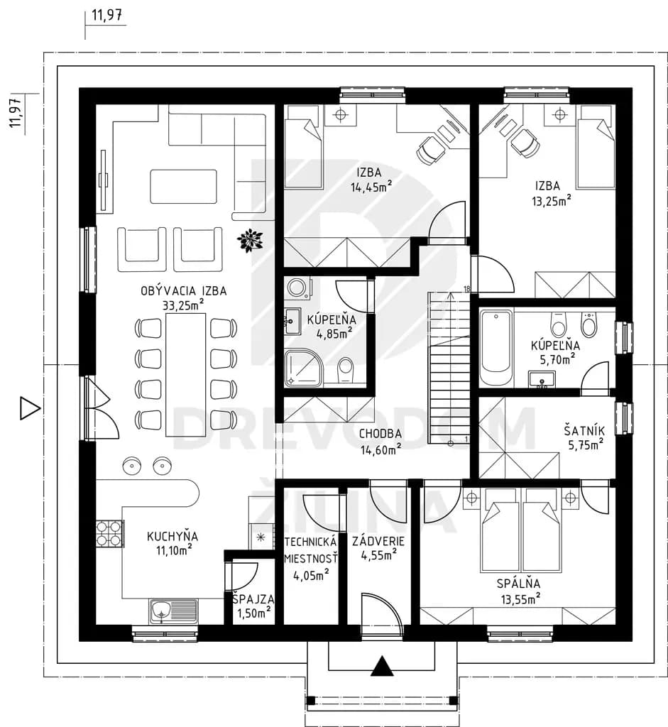
Paul je jednopodlažný rodinný dom zastrešený sedlovou strechou. Vstup do domu je situovaný na východnej strane, pri vstupe sa nachádza technická miestnosť, dom ďalej obsahuje priestrannú obývaciu izbu spojenú s kuchyňou, pri ktorej je špajza, spálňu so šatníkom a kúpeľňou, dve samostatné izby a kúpeľňu. Na poschodí sa nachádzajú skladovacie priestory a poslucháreň na zriadenie domáceho kina.
Pôdorys a pohľady
Projektová dokumentácia
Kompletná projektová dokumentácia obsahuje architektonickú časť, sprievodnú a technickú správu, výkresy v mierke 1:50, a to: pôdorysy všetkých podlaží, pôdorysy základov, výkres krovu a strechy, rezy, pohľady, výkaz stavebných otvorov, vizualizáciu, statiku, vykurovanie, zdravotechniku, elektroinštalácie, vzduchotechniku, tepelno-technický posudok a požiarnu bezpečnosť.
Zmeny v projekte
Radi Vám katalógový projekt prispôsobíme podľa Vašich želaní. Či už ide o väčšie alebo menšie úpravy projektu. Po prekonzultovaní sa dohodneme na najlepšom možnom riešení. Dom z katalógu sa môže teda stať minulosťou, a pomocou individuálneho prístupu a konzultáciou medzi investorom a stavebníkom príde k spoločnej dohode. Úpravy v projektových dokumentáciách riešime osobnými konzultáciami.








