Popis stavby
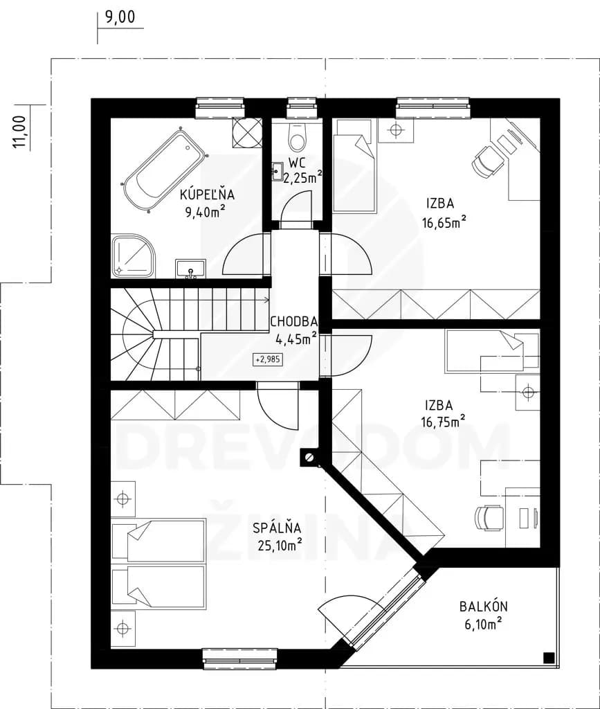
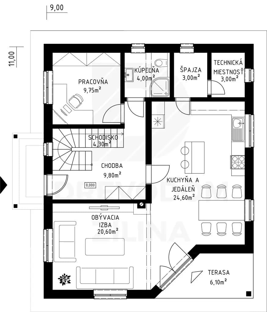
Tommy je dvojpodlažný rodinný dom s priestranným pôdorysom zabezpečujúcim pohodlné využívanie pre všetkých členov domácnosti. Na 1.NP je zo vstupnej chodby prístupná kúpelňa s WC a pracovňa, nasledujú dvere do kuchyne s jedálňou, ktorá je spojená s obývacou izbou a poskytuje taktiež priamy prístup na terasu. Okrem toho sa tu nachádza špajza a technické zázemie domu. Na 2.NP sa nachádzajú dve izby, priestranná spálňa s balkónom, kúpeľňa a samostatné WC.
Pôdorys a pohľady
Projektová dokumentácia
Kompletná projektová dokumentácia obsahuje architektonickú časť, sprievodnú a technickú správu, výkresy v mierke 1:50, a to: pôdorysy všetkých podlaží, pôdorysy základov, výkres krovu a strechy, rezy, pohľady, výkaz stavebných otvorov, vizualizáciu, statiku, vykurovanie, zdravotechniku, elektroinštalácie, vzduchotechniku, tepelno-technický posudok a požiarnu bezpečnosť.
Zmeny v projekte
Radi Vám katalógový projekt prispôsobíme podľa Vašich želaní. Či už ide o väčšie alebo menšie úpravy projektu. Po prekonzultovaní sa dohodneme na najlepšom možnom riešení. Dom z katalógu sa môže teda stať minulosťou, a pomocou individuálneho prístupu a konzultáciou medzi investorom a stavebníkom príde k spoločnej dohode. Úpravy v projektových dokumentáciách riešime osobnými konzultáciami.









