Popis stavby
Wonder je dvojpodlažný rodinný dom prestrešený sedlovou strechou s vikierom a s garážou s plochou strechou tvoriacou terasu. Po vstupe do zádveria nasleduje chodba odkiaľ je prístupná spálňa, kúpeľňa, technická miestnosť, špajza a samostatná kuchyňa s obývacou izbou, z ktorej je východ na terasu.
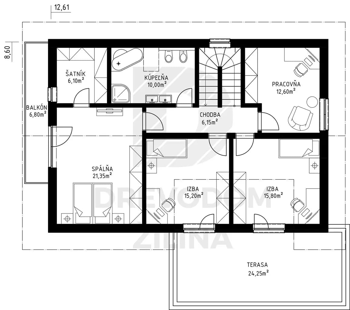
Na 2. NP sa nachádza spálňa s balkónom a šatníkom, kúpeľňa, dve izby s prístupom na terasu a pracovňa.
Pôdorys a pohľady
Projektová dokumentácia
Kompletná projektová dokumentácia obsahuje architektonickú časť, sprievodnú a technickú správu, výkresy v mierke 1:50, a to: pôdorysy všetkých podlaží, pôdorysy základov, výkres krovu a strechy, rezy, pohľady, výkaz stavebných otvorov, vizualizáciu, statiku, vykurovanie, zdravotechniku, elektroinštalácie, vzduchotechniku, tepelno-technický posudok a požiarnu bezpečnosť.
Zmeny v projekte
Radi Vám katalógový projekt prispôsobíme podľa Vašich želaní. Či už ide o väčšie alebo menšie úpravy projektu. Po prekonzultovaní sa dohodneme na najlepšom možnom riešení. Dom z katalógu sa môže teda stať minulosťou, a pomocou individuálneho prístupu a konzultáciou medzi investorom a stavebníkom príde k spoločnej dohode. Úpravy v projektových dokumentáciách riešime osobnými konzultáciami.









