Popis stavby
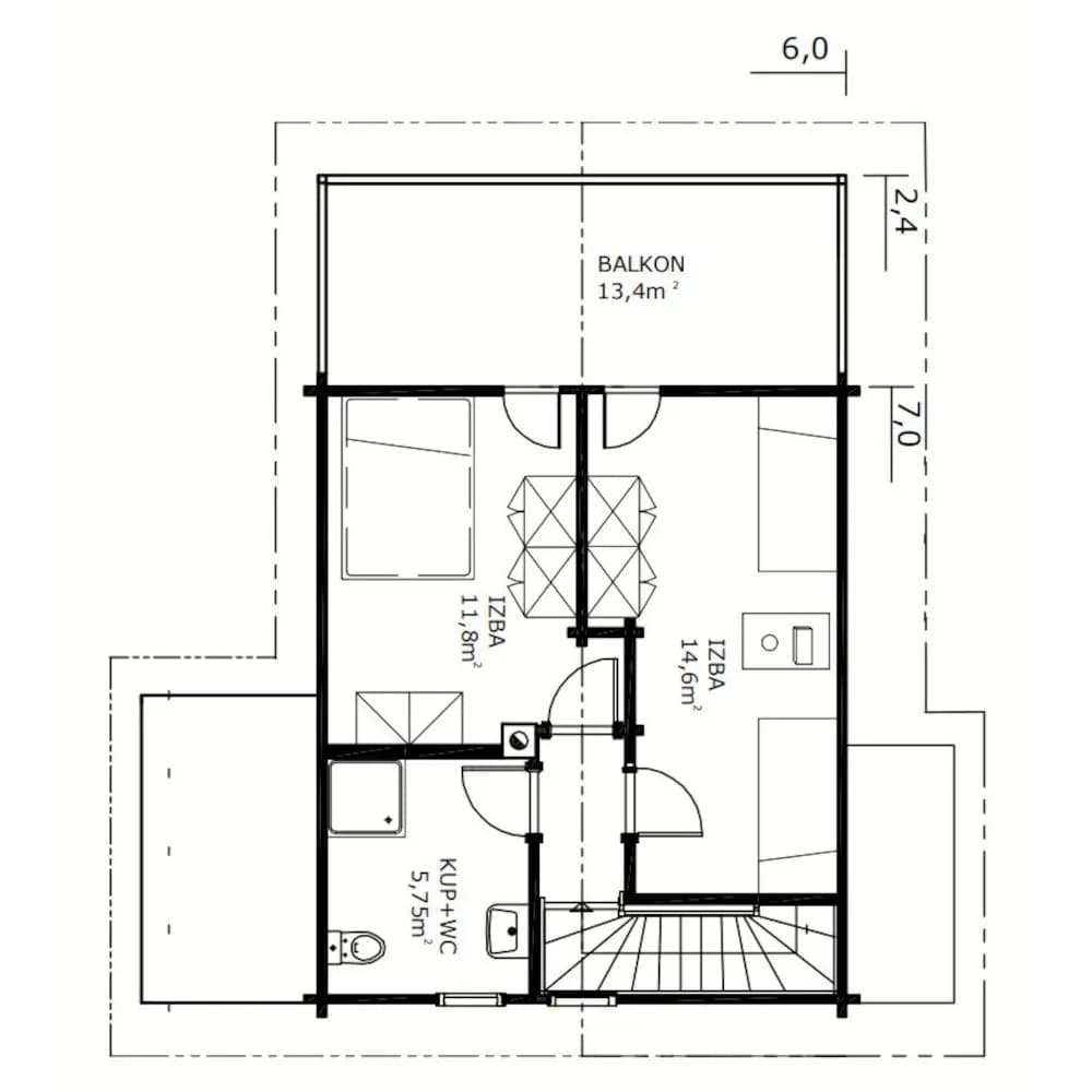
Rekreačná chata Bodíky s terasou je svojou úžitkovou plochou 76 m² veľkorysá a priestranná, poskytuje dostatok komfortu i súkromia takmer ako menší dom. Prízemie pozostáva zo vstupnej chodby, z ktorej prejdeme do kuchyne spojenej s obývačkou s výstupom na terasu. Z chodby je prístup do kúpelne spojenej s WC. Schodišťom sa dostaneme na 2 podlažie, kde sú 2 samostatné izby a kúpelňa spojená s WC. Z oboch izieb na 2 podlaží je prístup na veľkú prestrešenú terasu. Súčasťou stavby je hospodárska miestnosť prístupná zvonku.
Pôdorys a pohľady
 
Cena
Cena zahŕňa kompletnú uzavretú stavbu so:
- zrubovou konštrukciou stavby
- hrúbkou zrubu 60 mm
- strešnými hranolmi
- strešnou perodrážkou 19 mm
- oknami s okenicami
- vchodovými a interiérovými smrekovými dverami podľa nákresu
- prestrešenou terasou














