Popis stavby
Najnovší model našich rekreačných chát.
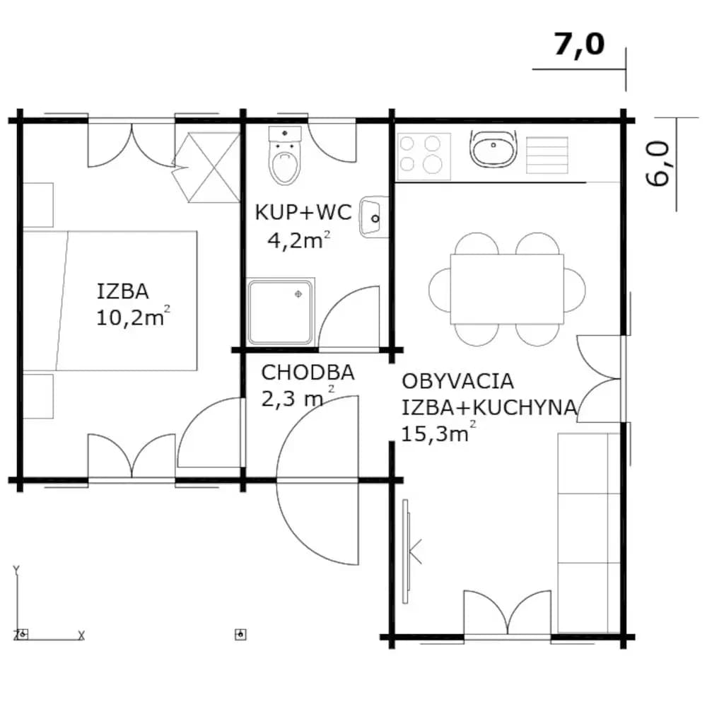
Dispozične je navrhnutá tak, že kuchyňa
a obývacia časť sú priestranné spojené.
Z nich je prístup do kúpelne s WC a samostatnej
izby. Terasa je prestrešená o rozmere 1,7 x 4,2 m,
s možnosťou dodania zábradlia.
Zrubová rekreačná chata Cecília je jednopodlažná.
Pôdorys a pohľady
 
Cena
Cena zahŕňa kompletnú uzavretú stavbu so:
- zrubovou konštrukciou stavby
- hrúbkou zrubu 60 mm
- strešnými hranolmi
- strešnou perodrážkou 19 mm
- oknami s okenicami
- vchodovými a interiérovými smrekovými dverami podľa nákresu
- prestrešenou terasou










