Popis stavby
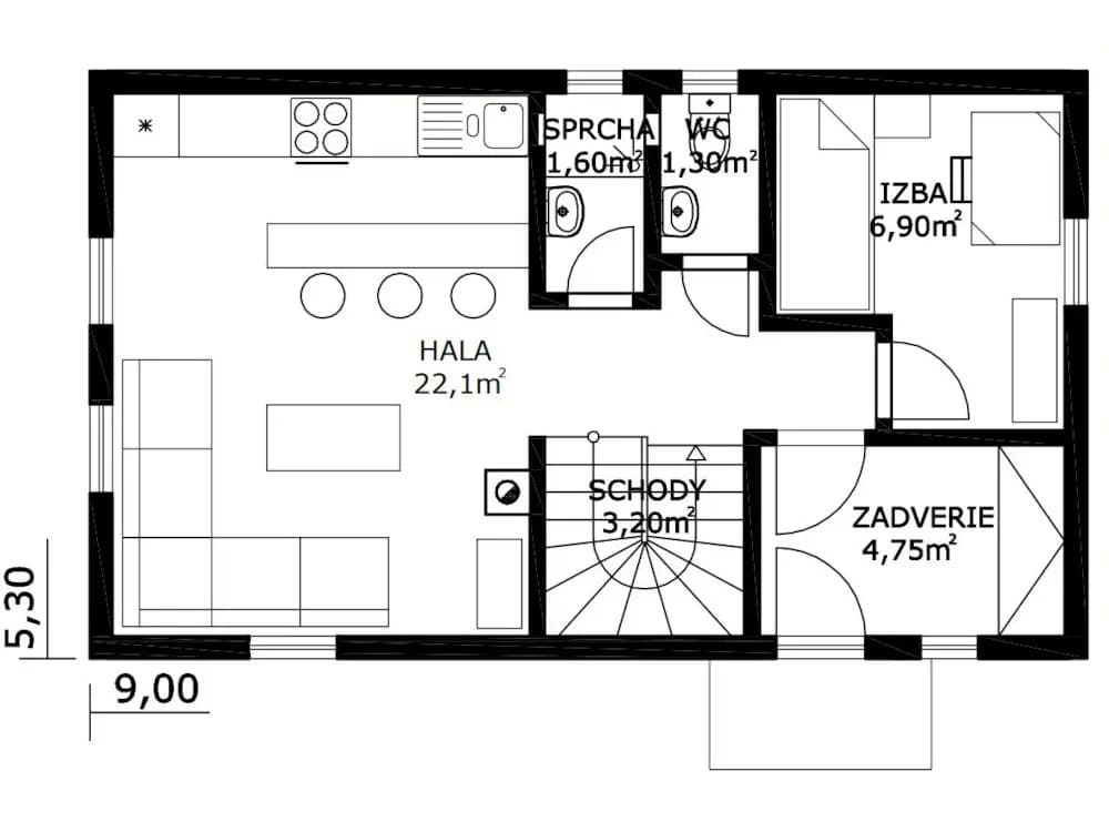
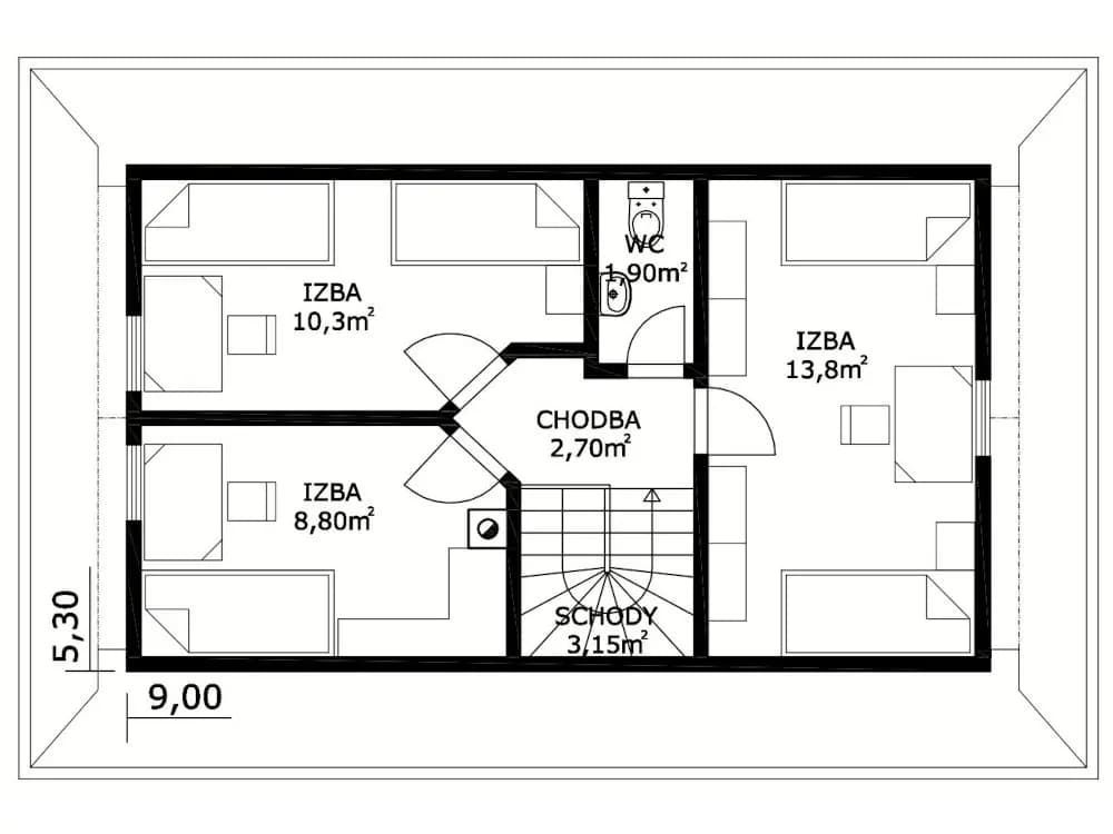
Rekreačná chata Drevenica Lesná je svojou úžitkovou plochou 80 m² veľkorysá a priestranná, poskytuje dostatok komfortu i súkromia takmer ako dom. Vstup je zboku stavby. Zádverie je samostatné. Z chodby na prízemí máme prístup do kuchyne spojenej s obývačkou, do samostatnej izby a výhodou je oddelená kupeľňa a WC. Schodiskom prejdeme na druhé podlažie, kde sú ďaľšie 3 izby a WC. Krásna zrubová dvojpodlažná stavba s dostatkom priestoru, súkromia a komfortu pre Vás i Vašu rodinu.
Pôdorys a pohľady
 
Cena
Cena zahŕňa kompletnú uzavretú stavbu so:
- zrubovou konštrukciou stavby
- hrúbkou zrubu 60 mm
- strešnými hranolmi
- strešnou perodrážkou 19 mm
- oknami s okenicami
- vchodovými a interiérovými smrekovými dverami podľa nákresu
- prestrešenou terasou









