Popis stavby
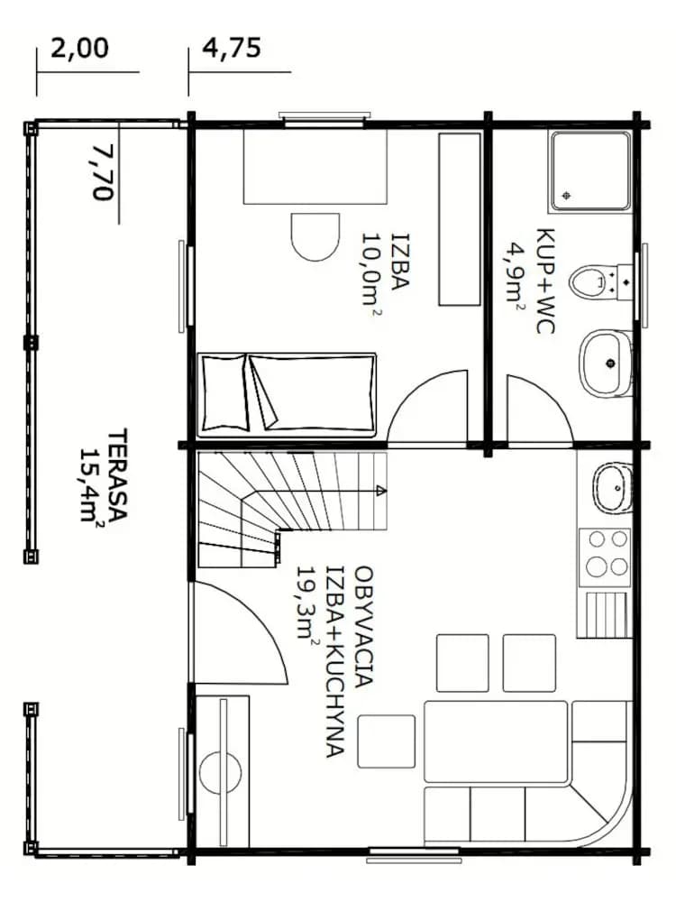
Rekreačná chata Ivana je svojou úžitkovou plochou 65 m² veľkorysá a priestranná, poskytuje dostatok komfortu i súkromia. Vstup je celoprestrešený po celej dĺžke stavby, často využívaný ako terasa. Na prízemí sa nachádza kuchyňa s obývacou časťou, kúpelňa spojená s WC a samostatná izba. Schodišťom prejdeme na druhé podlažie, kde sú 2 samostatné izby. Krásna zrubová dvojpodlažná stavba s dostatkom priestoru, súkromia a komfortu pre Vás i Vašu rodinu.
Pôdorys a pohľady
 
Cena
Cena zahŕňa kompletnú uzavretú stavbu so:
- zrubovou konštrukciou stavby
- hrúbkou zrubu 60 mm
- strešnými hranolmi
- strešnou perodrážkou 19 mm
- oknami s okenicami
- vchodovými a interiérovými smrekovými dverami podľa nákresu
- prestrešenou terasou










