Popis stavby
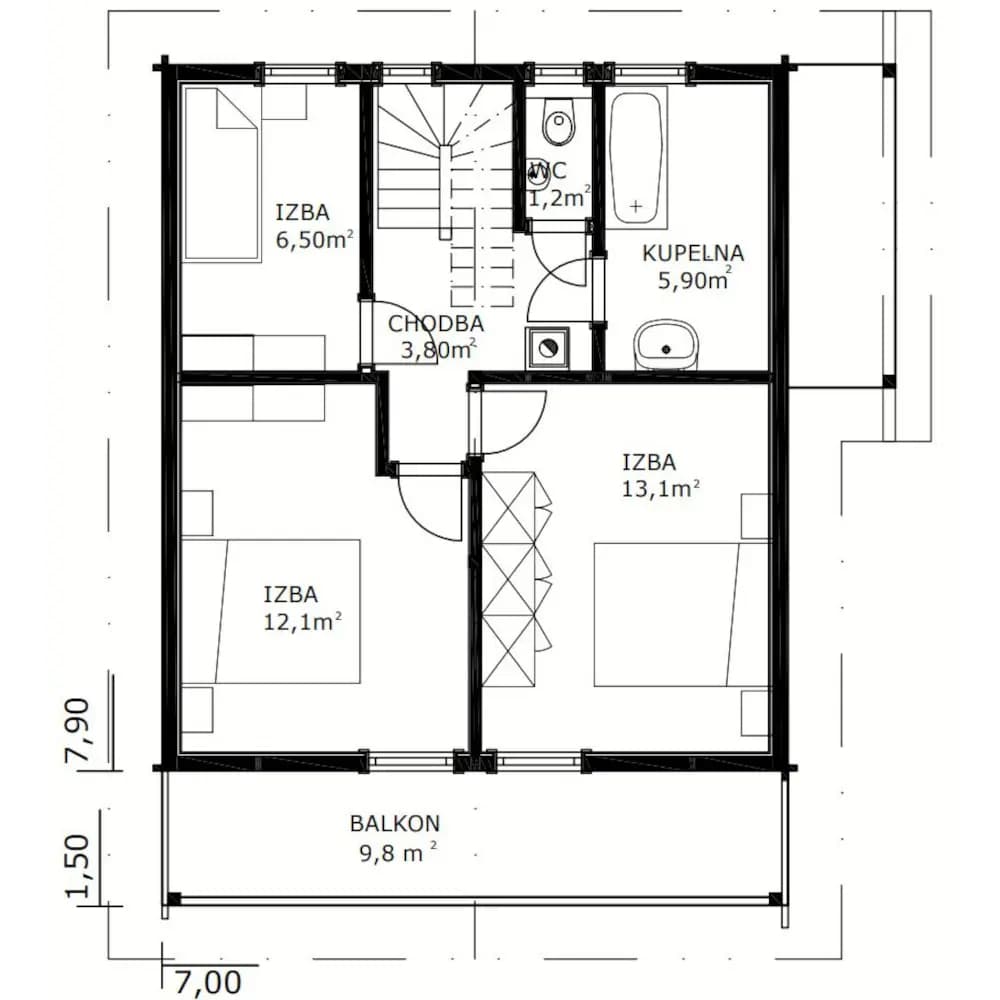
Rekreačná chata Lea je svojou úžitkovou plochou 82 m² takmer ako menší dom. Prestrešeným vstupom prejdeme do zádveria. Tu máme prístup do samostatnej kúpelne a WC. Na prízemí sa ďalej nachádza kuchyňa prepojená s obývačkou. Pri schodišti sa nachádza menšia miestnosť využívaná ako špajza alebo technická miestnosť. Na druhom podlaží sú 3 samostatné izby a oddelené WC a kúpelňa. Z dvoch izieb druhého podlažia je prístup na spoločný celoprestrešený balkón. Krásna zrubová dvojpodlažná stavba s dostatkom priestoru, súkromia a komfortu pre Vás i Vašu rodinu.
Pôdorys a pohľady
 
Cena
Cena zahŕňa kompletnú uzavretú stavbu so:
- zrubovou konštrukciou stavby
- hrúbkou zrubu 60 mm
- strešnými hranolmi
- strešnou perodrážkou 19 mm
- oknami s okenicami
- vchodovými a interiérovými smrekovými dverami podľa nákresu
- prestrešenou terasou










