Popis stavby
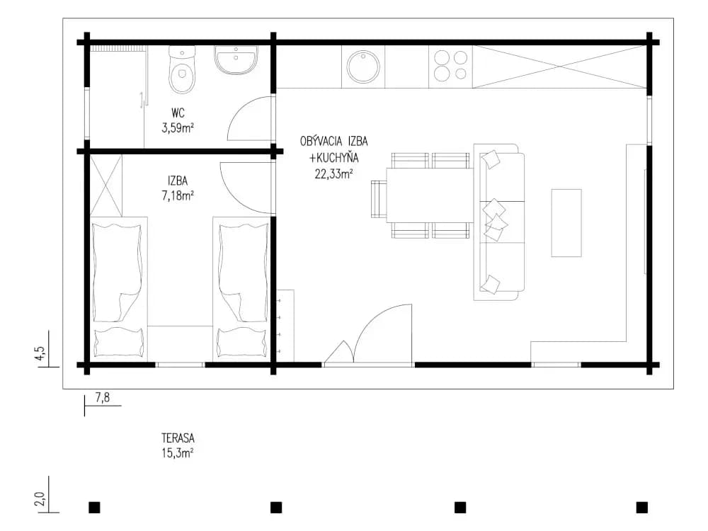
Rekreačná chata Majka ponúka úžitkovú plochu o veľkosti 33m². Kuchyňa a obývacia časť sú spojené a tvoria najvačšiu časť stavby. Nachádza sa tu priestranná kúpelňa spojená s WC a samostatná izba. Celá stavba je vzdušná priestranná a ponúka tak komfort a veľký priestor k rekreácii. Pred vstupom je na celú dĺžku chaty predĺžená časť strechy formou pergoly, možnosť využívať aj ako terasu. Rekreačná chata Majka je jednopodlažná zrubová stavba.
Pôdorys a pohľady
 
Cena
Cena zahŕňa kompletnú uzavretú stavbu so:
- zrubovou konštrukciou stavby
- hrúbkou zrubu 60 mm
- strešnými hranolmi
- strešnou perodrážkou 19 mm
- oknami s okenicami
- vchodovými a interiérovými smrekovými dverami podľa nákresu
- prestrešenou terasou







