Popis stavby
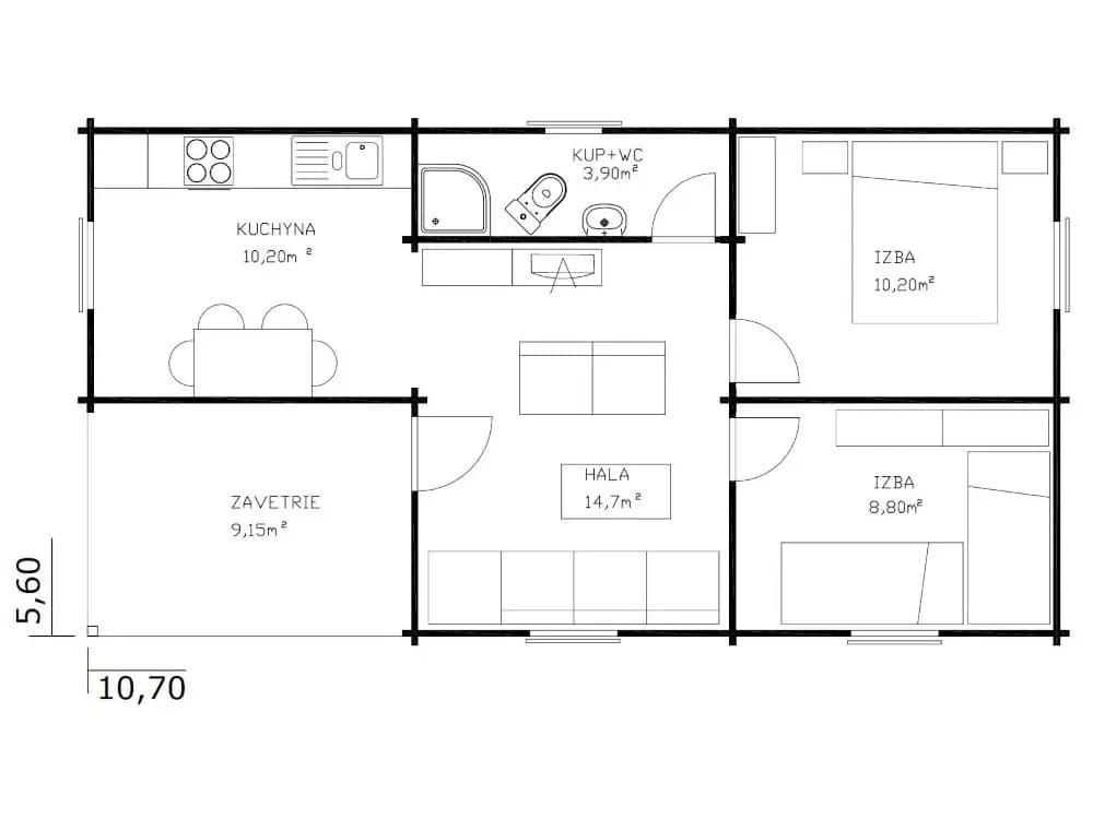
Rekreačná chata Maurício je svojou úžitkovou plochou 47,8m² veľkorysá a priestranná, svojou rozlohou ako 2 izbový byt. K samostatnej kuchyni je priľahlá priestranná obývacia časť. Z obývacej časti je prístup do ďalších samostatných 2 izieb a kúpelne spojenej s WC. Plne prestrešený vstup je využívaný aj ako terasa. Maurício je jednopodlažná zrubová stavba.
Pôdorys a pohľady
 
Cena
Cena zahŕňa kompletnú uzavretú stavbu so:
- zrubovou konštrukciou stavby
- hrúbkou zrubu 60 mm
- strešnými hranolmi
- strešnou perodrážkou 19 mm
- oknami s okenicami
- vchodovými a interiérovými smrekovými dverami podľa nákresu
- prestrešenou terasou










