Popis stavby
MATERIÁL – SMREK:
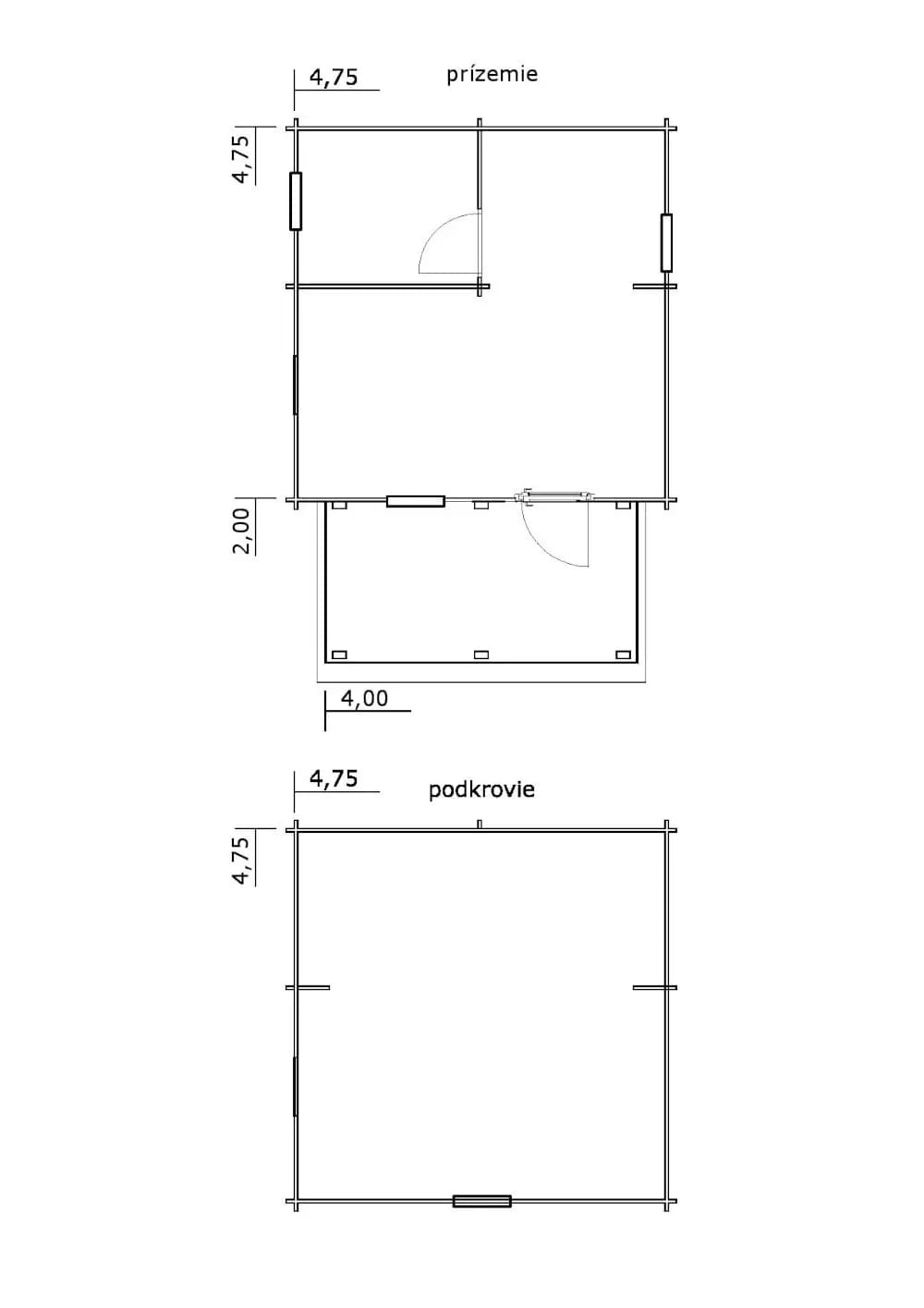
A: Výška hrebeňa strechy: 403 cm
B: Výška bočnej steny: 266 cm
C: Bočný presah strechy: 30 cm
D: zadný presah strechy: 22 cm
E: Dĺžka terasy: 200 cm
Dvere: jednokrídlové 75 x 184 cm, plné pravé 2ks
Okno: pravé 60 x 75 cm s okenicou, 3 ks
Okno: pravé 64 x 64 cm s okenicou, 1ks
Hrúbka strešnej perodrážky: 19 mm
Hrúbka steny: 40 mm
Pôdorys a pohľady
 
Doplnky
Ponúkame možnosť doobjednať:
- Tepelnú izoláciu strechy 12 cm + debnenie
- Tepelnú izoláciu obvodových stien 6 cm + drevený odklad
- Tepelnú izoláciu podlahy 5 cm
- Drevenú podlahu hrúbky 28 mm
- Strešnú krytinu (trapézový plech)




