Popis stavby
MATERIÁL: SMREK
A: Výška hrebeňa strechy: 250 cm
B: Výška bočnej steny: 246 a 226 cm
C: Čelný presah strechy: 38 cm
D: Bočný presah strechy: 13 cm
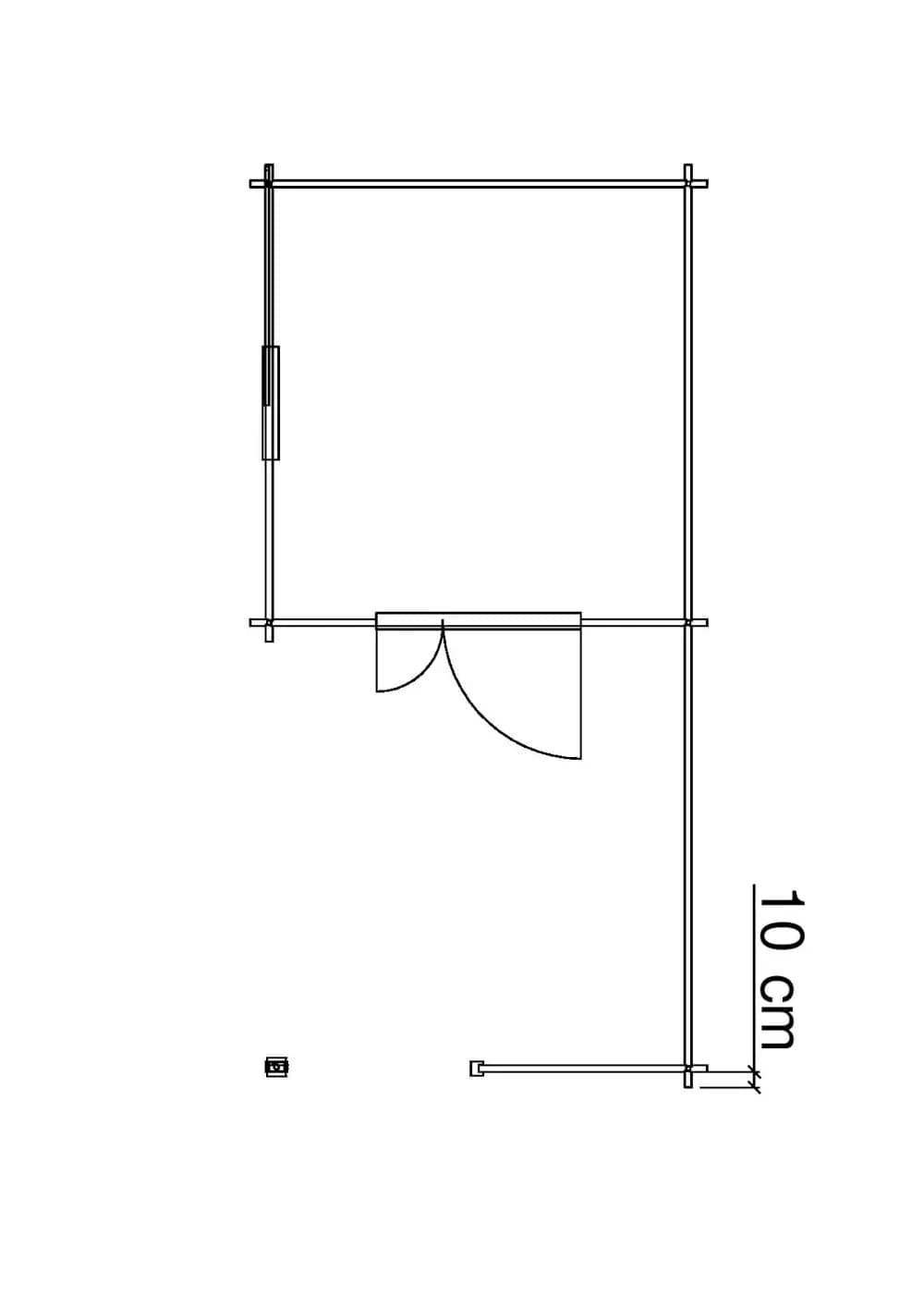
Dvere: dvojkrídlové 120 x 175 cm, 2/3 sklo
Okno: 60 x 120 cm, bez okenice
Hrúbka strešnej perodrážky: 19 mm
Hrúbka steny: 28 mm alebo 40 mm
Rozmery chatky sú vrátane presahu stien 10 cm
Pôdorys a pohľady
 




