Popis stavby
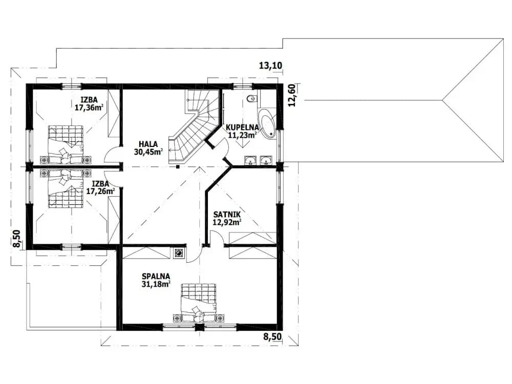
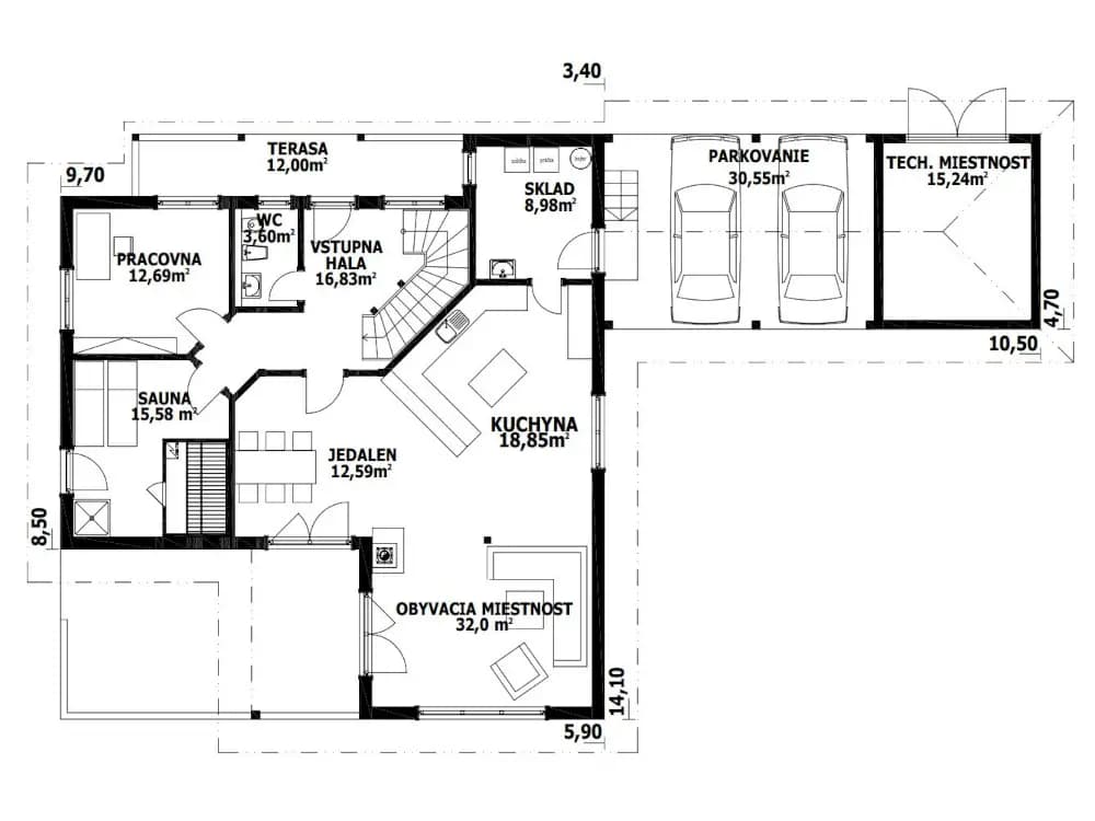
Zrubový dvojpodlažný rodinný dom. Zo vstupnej chodby je prístup do samostatného WC, ďalej do pracovne, samostatnej izby a veľkej priestrannej kuchyne spojenej s obývacou časťou a jedálenskou časťou. Celý priestor je presvetlený veľkými francúzskymi oknami s výstupom na terasu. Z kuchyne je vstup do veľkej špajze/technickej miestnosti prístupnej aj z vonku. Na druhom podlaží sú 3 spálne, kúpeľňa s WC, veľký šatník. Tento dom je vhodný pre veľkú rodinu. K domu patrí aj vonkajšia zrubová časť, prepojená s domom plným prestrešením, kde vzniklo kryté miesto pre dve autá.
Pôdorys a pohľady
 
Cena
Cena zahŕňa kompletnú uzavretú stavbu s:
- drevenným skeletom stavby
- drevenným krovom
- izoláciou stien a strechy
- oknami a vchodovými dverami
- strešnou krytinou
- odkvapovým systémom










