Popis stavby
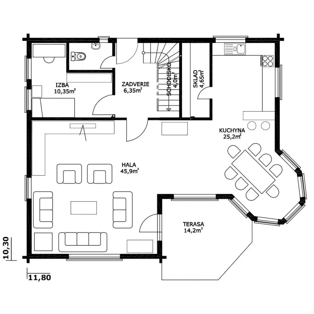
Na prízemí pri vstupnej chodbe sa nachádza samostatná toaleta ako aj jediná izba na spodnom podlaží, ponúka tam ničím nerušený priestor vhodný aj ako pracovňa. Obývacia časť s krbom je krásne prepojená s jedálňou a kuchyňou. Z jedálne je prístup na otvorenú terasu – balkón. V kuchyni je nenápadne umiestená špajza. Na poschodí sa nachádza priestranná kúpeľňa, dve spálne. Z jednej je prístup na celoprestrešený balkón. Horné poschodie ponúka priestor ešte pre tretiu menšiu izbu ako aj samostatný šatník. Tento dom je určený pre väčšiu rodinu s deťmi.
Pôdorys a pohľady
 
Cena
Cena zahŕňa kompletnú uzavretú stavbu s:
- drevenným skeletom stavby
- drevenným krovom
- izoláciou stien a strechy
- oknami a vchodovými dverami
- strešnou krytinou
- odkvapovým systémom













