Popis stavby
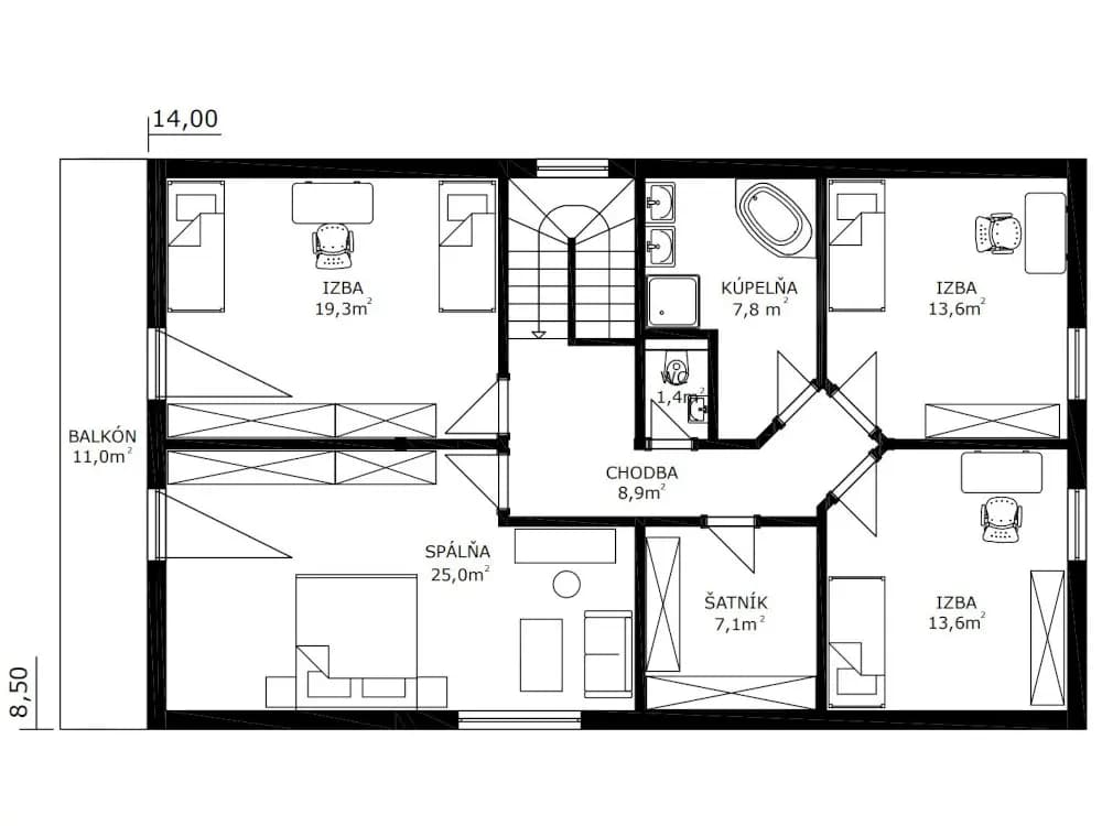
Dom Harmony je veľmi dobre riešený dispozične. Na prízemí za zádverím je spojovacia chodba pre vstup do všetkých miestností prízemia. Kuchyňa s obývacou časťou je prepojená čiastočne priečkou a z oboch je cez terasové dvere výstup naterasu. Na prízemí sú ešte dve izby a samostatné WC, kúpeľňa a technická miestnosť. Schodišťom pri kuchyni prejdeme na druhé podlažie, kde je veľká spálňa a tri ďalšie izby, WC, kúpeľňa a osobitne aj šatník. Zo spálne a jednej izby je vstup na spoločný balkón. Dom Harmony je veľký pristranný určený pre veľkú rodinu s deťmi.
Pôdorys a pohľady
 
Cena
Cena zahŕňa kompletnú uzavretú stavbu s:
- drevenným skeletom stavby
- drevenným krovom
- izoláciou stien a strechy
- oknami a vchodovými dverami
- strešnou krytinou
- odkvapovým systémom







