Popis stavby
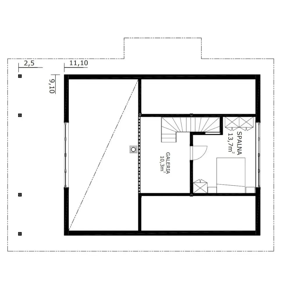
Vstup je prestrešený a zo zádveria je prístup do technickej miestnosti. Na prízemí je veľká kuchyňa s obývačkou spojená a presvetlená s veľkými francúzskymi oknami s výstupom na prestrešenú terasu na celú šírku domu. Na prízemí sú ešte dve samostatné izby a kúpeľňa spojená s WC. Schodiskom prejdeme na druhé podlažie, kde je samostatná spálňa a od schodiska otvorená galéria s výhľadom cez veľké okná až do štítu. Po stranách pod štítom sú pozdĺžne priestory často využívané ako úložné miestnosti. Moderný, luxusný rozlohou nenáročný dom vhodný pre rodinu s deťmi.
Pôdorys a pohľady
 
Cena
Cena zahŕňa kompletnú uzavretú stavbu s:
- drevenným skeletom stavby
- drevenným krovom
- izoláciou stien a strechy
- oknami a vchodovými dverami
- strešnou krytinou
- odkvapovým systémom














