Popis stavby
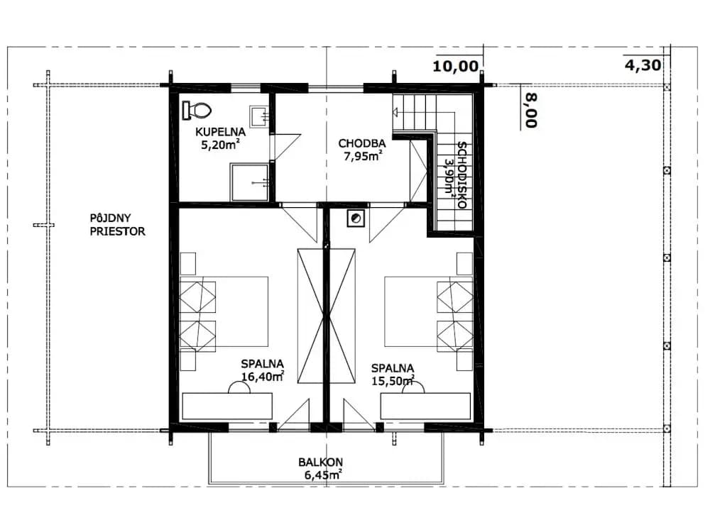
Zo zádveria je prístup ku veľkej kúpeľni s WC a priamy vstup do centrálnej časti domu, kde je členito prepojená kuchyňa s obývačkou a jedálňou. Z obývačky je ďalej vstup do dvoch samostatných izieb. Od zádveria vedie schodisko na druhé podlažie. Tu nájdeme kúpeľňu s WC a dve veľké zrkadlové izby, z oboch vstup na spoločný balkón. Krásna drevostavba s tradičnou sedlovou strechou a s prístreškom pre auto, ktorý je súčasťou stavby vďaka predĺženej streche. Dom poskytuje dostatok priestoru a komfortu pre väčšiu rodinu s deťmi.
Pôdorys a pohľady
 
Cena
Cena zahŕňa kompletnú uzavretú stavbu s:
- drevenným skeletom stavby
- drevenným krovom
- izoláciou stien a strechy
- oknami a vchodovými dverami
- strešnou krytinou
- odkvapovým systémom












