Popis stavby
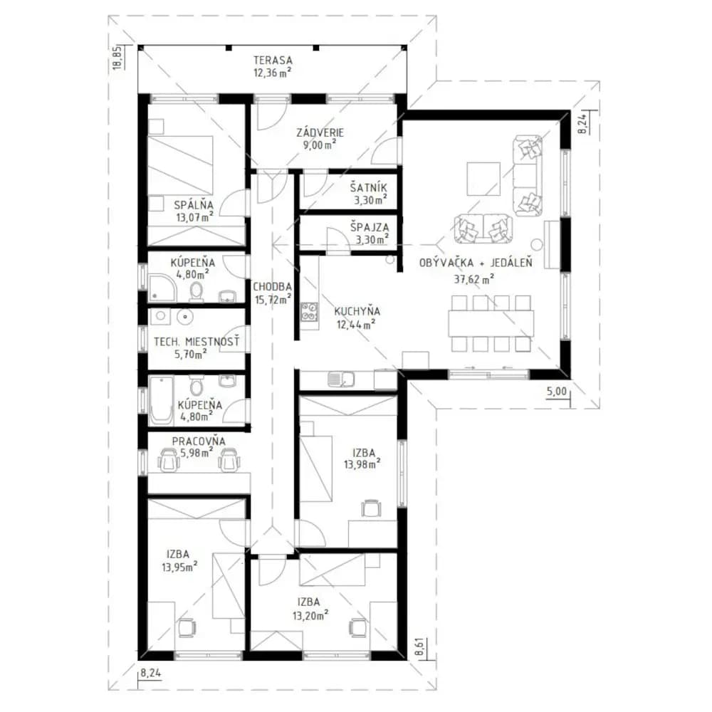
Jednopodlažné domy sú často vyhľadávané. Prestrešený vstup môže slúžiť aj ako menšia terasa. Presvetlené zádverie so šatníkom sú praktické. Chodba vedie celým domom je z nej prístup do všetkých miestností. Spálňa s výhľadom na terasu, dve kúpeľne, technická miestnosť, pracovňa a ďalšie 3 izby s veľkými francúzskymi oknami poskytujú dostatok súkromia, priestoru a komfortu. Kuchyňa s obývačkou a jedálňou sú v tvare „L“ s veľkými francúzskymi oknami a vstupom na veľkú terasu v zátiší domu. Moderný, luxusný, svetlý a priestranný dom ideálny pre väčšiu rodinu.
Pôdorys a pohľady
 
Cena
Cena zahŕňa kompletnú uzavretú stavbu s:
- drevenným skeletom stavby
- drevenným krovom
- izoláciou stien a strechy
- oknami a vchodovými dverami
- strešnou krytinou
- odkvapovým systémom









