Popis stavby
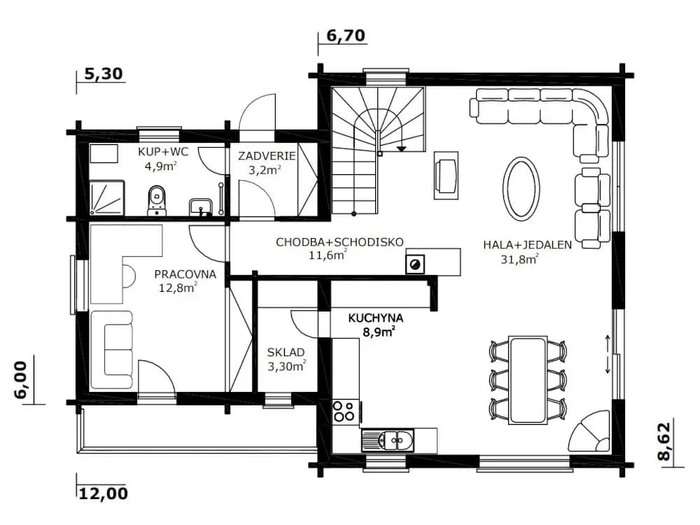
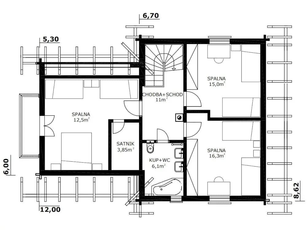
Luxusná drevostavba pre dostatok komfortu i súkromia. Za zádverím sa nachádza kúpeľňa s WC a pracovňa s balkónom. Kuchyňa so špajzou, obývačkou a jedálenskou časťou sú krásne prepojené a tvoria prevažnú časť prízemia. Priestor presvetľujú veľké francúzske okná, ktorými sa vchádza na otvorenú terasu. V kuchyni je nenápadne umiestená špajza. Na poschodí sa nachádza priestranná kúpeľňa, tri spálne z toho jedna s oddeleným šatníkom a balkónom. Tento dom je určený pre väčšiu rodinu s deťmi.
Pôdorys a pohľady
 
Cena
Cena zahŕňa kompletnú uzavretú stavbu s:
- drevenným skeletom stavby
- drevenným krovom
- izoláciou stien a strechy
- oknami a vchodovými dverami
- strešnou krytinou
- odkvapovým systémom













