Popis stavby
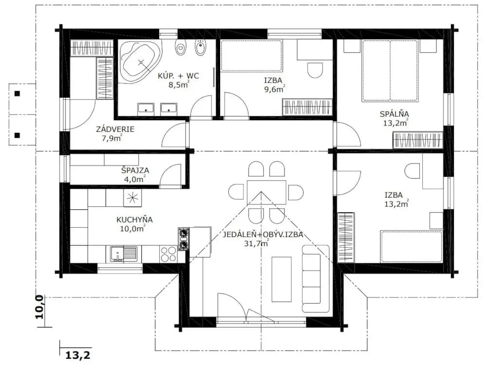
Bungalovy sú často vyhľadávané pre svoj bezbariérový prechod miestnosťami domu. Vstup je prestrešený, samostatný šatník pri zádverí je výhodou. Od zádveria prejdeme do veľkej obývacej izby s čiastočne prepojenou kuchyňou. Obývacia časť je veľká priestranná a presvetlená veľkými francúzskymi oknami s vstupom na budúcu terasu. Obývacia izba je centrum hlavná časť domu odkiaľ sú prístupné ostatné 2 izby, spálňa a kupeľňa spojená s WC. Pri kuchyni je aj špajza s oknom čo je výhodou. Krásny zrubový priestranný dom pre rodinu s deťmi.
Pôdorys a pohľady
 
Cena
Cena zahŕňa kompletnú uzavretú stavbu s:
- drevenným skeletom stavby
- drevenným krovom
- izoláciou stien a strechy
- oknami a vchodovými dverami
- strešnou krytinou
- odkvapovým systémom








