Popis stavby
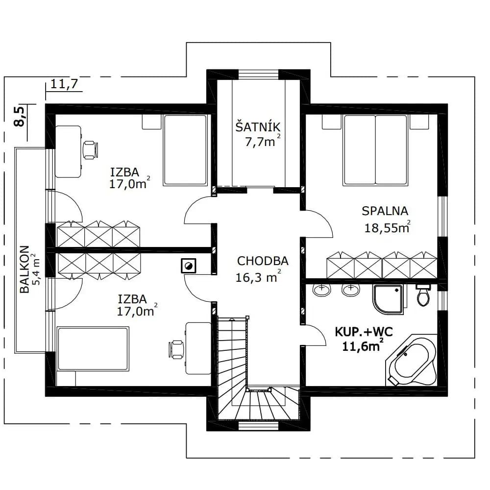
Zrubový veľký dvojpodlažný rodinný dom. Dom je rozdelený na dennú a nočnú časť. Za zádverím široká chodba s prístupom do izby môže slúžiť aj ako pracovňa, ďalej do kúpeľne s technickou miestnosťou. Z chodby prejdeme do členito prepojenej kuchyne, jedálne a obývačky. Z obývačky je vstup na terasu. Pri kuchyni je prakticky umiestnená aj špajza. Na druhom podlaží sú dve samostatné izby so spoločným balkónom, ďalej spálňa, veľká priestranná kúpeľňa s vaňou, sprchovým kútom, WC. Samostatný šatník presvetlený oknom je výborné. Dom je veľký priestranný pre väčšiu rodinu s deťmi.
Pôdorys a pohľady
 
Cena
Cena zahŕňa kompletnú uzavretú stavbu s:
- drevenným skeletom stavby
- drevenným krovom
- izoláciou stien a strechy
- oknami a vchodovými dverami
- strešnou krytinou
- odkvapovým systémom















