Popis stavby
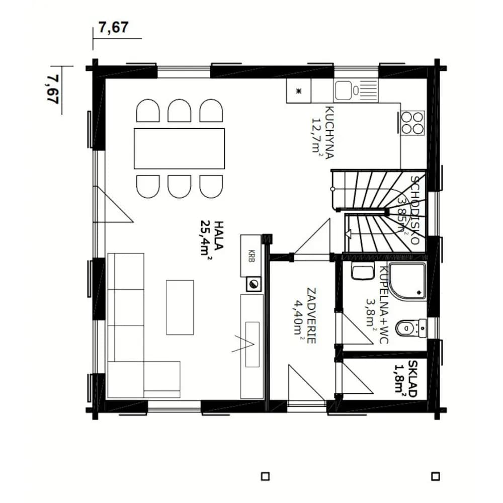
Rekreačná chata Orava je svojou úžitkovou plochou 100 m² takmer ako menší dom. Prestrešeným vstupom prejdeme do zádveria. Tu máme prístup do kúpeľne s WC a menšieho skladu. Na prízemí sa ďalej nachádza kuchyňa s jedálenskou časťou prepojená s obývačkou. Na druhom podlaží sú 3 samostatné izby a kúpeľňa spojená s WC. Z dvoch izieb druhého podlažia je prístup na spoločný balkón. Krásna zrubová dvojpodlažná stavba s dostatkom priestoru, súkromia a komfortu pre Vás i Vašu rodinu.
Pôdorys a pohľady
 
Cena
Cena zahŕňa kompletnú uzavretú stavbu s:
- drevenným skeletom stavby
- drevenným krovom
- izoláciou stien a strechy
- oknami a vchodovými dverami
- strešnou krytinou
- odkvapovým systémom












