Popis stavby
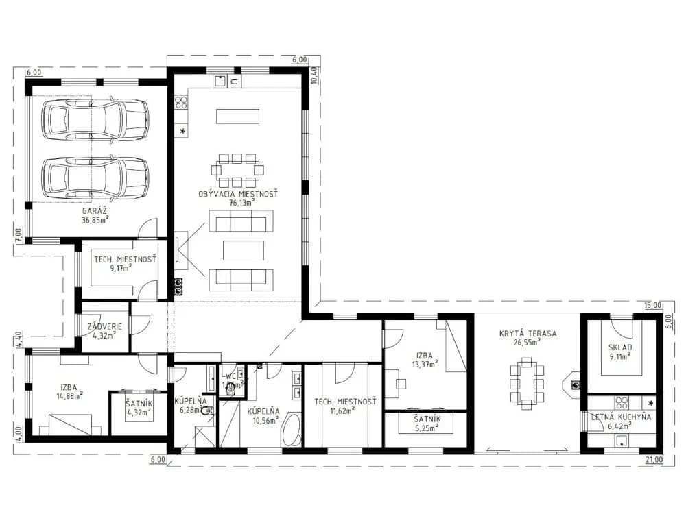
Dom je riešený do tvaru „L“. Jednu veľkú časť domu tvorí priestranná kuchyňa s obývačkou a po celej dĺžke veľké francúzske okná cez ktoré je možný vstup na terasu. Z chodby sú prístupné ďalšie časti ako veľká spálňa so šatníkom a vlastnou kúpeľňou. Ďalej je osobitne WC, kúpeľňa, technická miestnosť a izba so šatníkom a vstupom do záhrady. K domu patrí sklad, letná kuchynka, krytá terasa. Súčasťou domu je garáž pre dve autá prístupná zvonku ale i z domu. Naozaj veľký, komfortný, moderný dom pre Vás i Vašu rodinu.
Pôdorys a pohľady
 
Cena
Cena zahŕňa kompletnú uzavretú stavbu s:
- drevenným skeletom stavby
- drevenným krovom
- izoláciou stien a strechy
- oknami a vchodovými dverami
- strešnou krytinou
- odkvapovým systémom








