Popis stavby
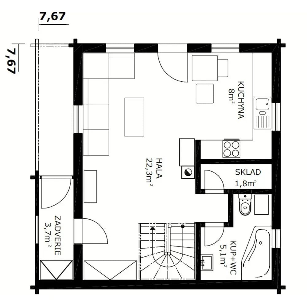
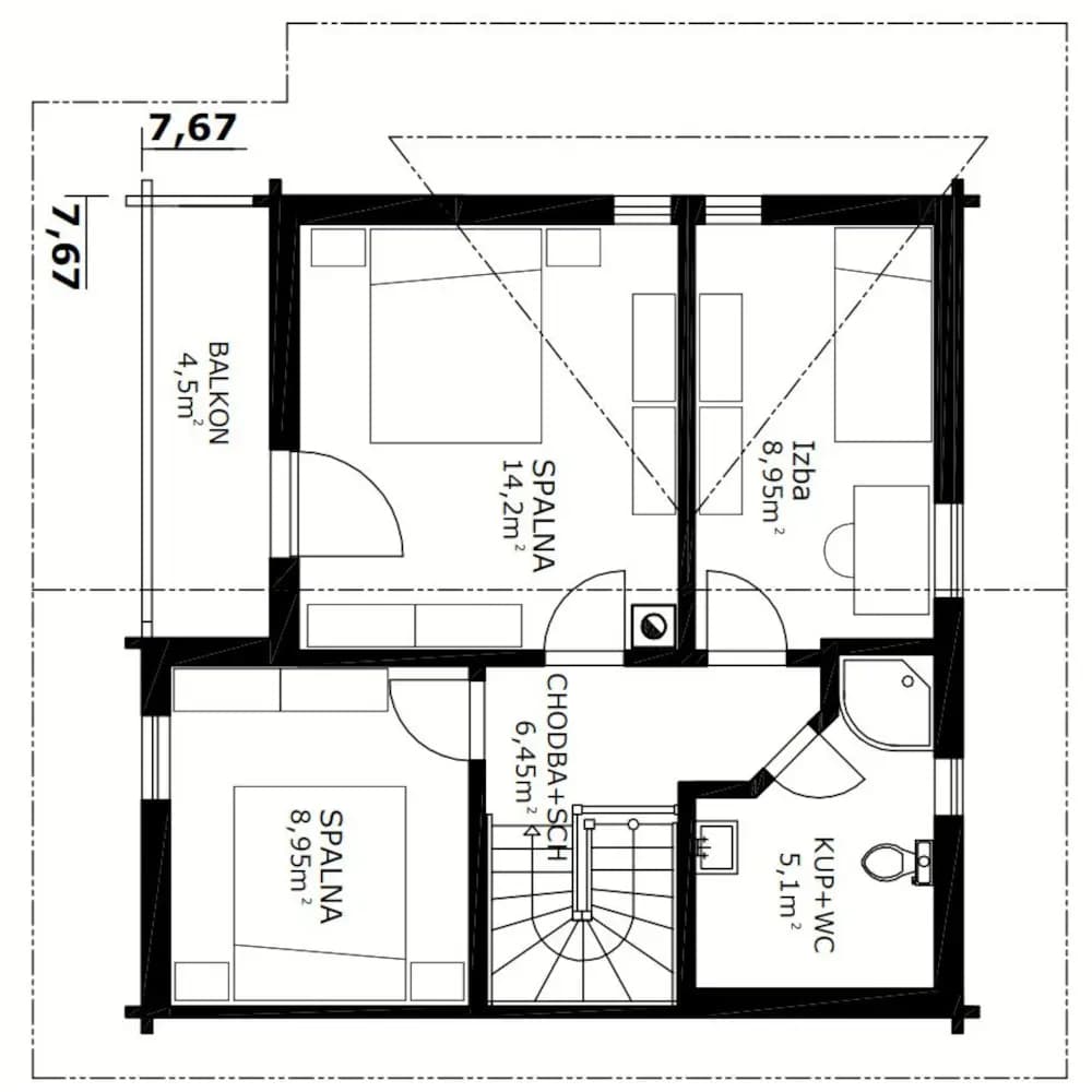
Rekreačná chata Priehrada je svojou úžitkovou plochou 85 m² takmer ako menší dom. Prestrešeným vstupom prejdeme do zádveria. Na prízemí sa nachádza kuchyňa s jedálenskou časťou prepojená s obývačkou. Pri schodišti sa nachádza menší sklad a ďalej kúpelňa spojená s WC. Na druhom podlaží sú 3 samostatné izby a kúpeľňa spojená s WC. Z najvačšej izby druhého podlažia je prístup na balkón. Krásna zrubová dvojpodlažná stavba s dostatkom priestoru, súkromia a komfortu pre Vás i Vašu rodinu.
Pôdorys a pohľady
 
Cena
Cena zahŕňa kompletnú uzavretú stavbu s:
- drevenným skeletom stavby
- drevenným krovom
- izoláciou stien a strechy
- oknami a vchodovými dverami
- strešnou krytinou
- odkvapovým systémom










