Popis stavby
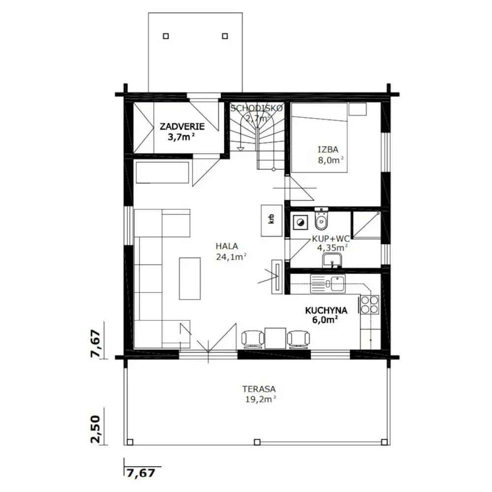
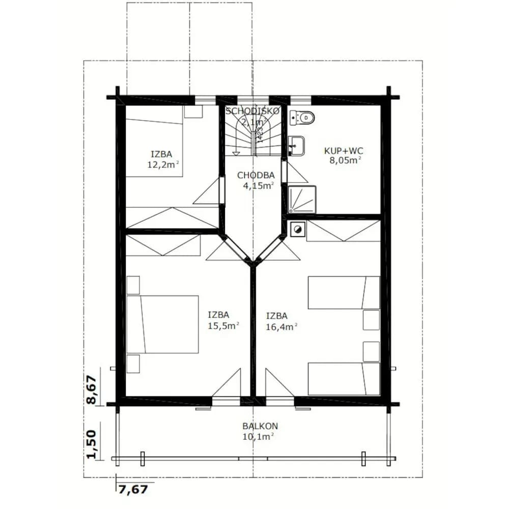
Krásny zrubový dom so sedlovou strechou je dispozične riešený na dennú a nočnú časť. Na prízemí zo zádveria prejdeme do priestranne obývačky s kuchyňou v tvare „L“. Z obývačky cez francúzske terasové dvere je vstup na veľkú prestrešenú terasu a čiastočne ohradenú zábradlím. Na prízemí z obývačky je vstup do kúpeľne s WC a samostatnej izby, ktorá môže slúžiť aj ako pracovňa. Na poschodí sú 3 izby a kúpeľňa s WC. Z dvoch izieb je vstup na celoprestrešený balkón. Krásny, priestranný ideálny pre rodinu s deťmi.
Pôdorys a pohľady
 
Cena
Cena zahŕňa kompletnú uzavretú stavbu s:
- drevenným skeletom stavby
- drevenným krovom
- izoláciou stien a strechy
- oknami a vchodovými dverami
- strešnou krytinou
- odkvapovým systémom











