Popis stavby
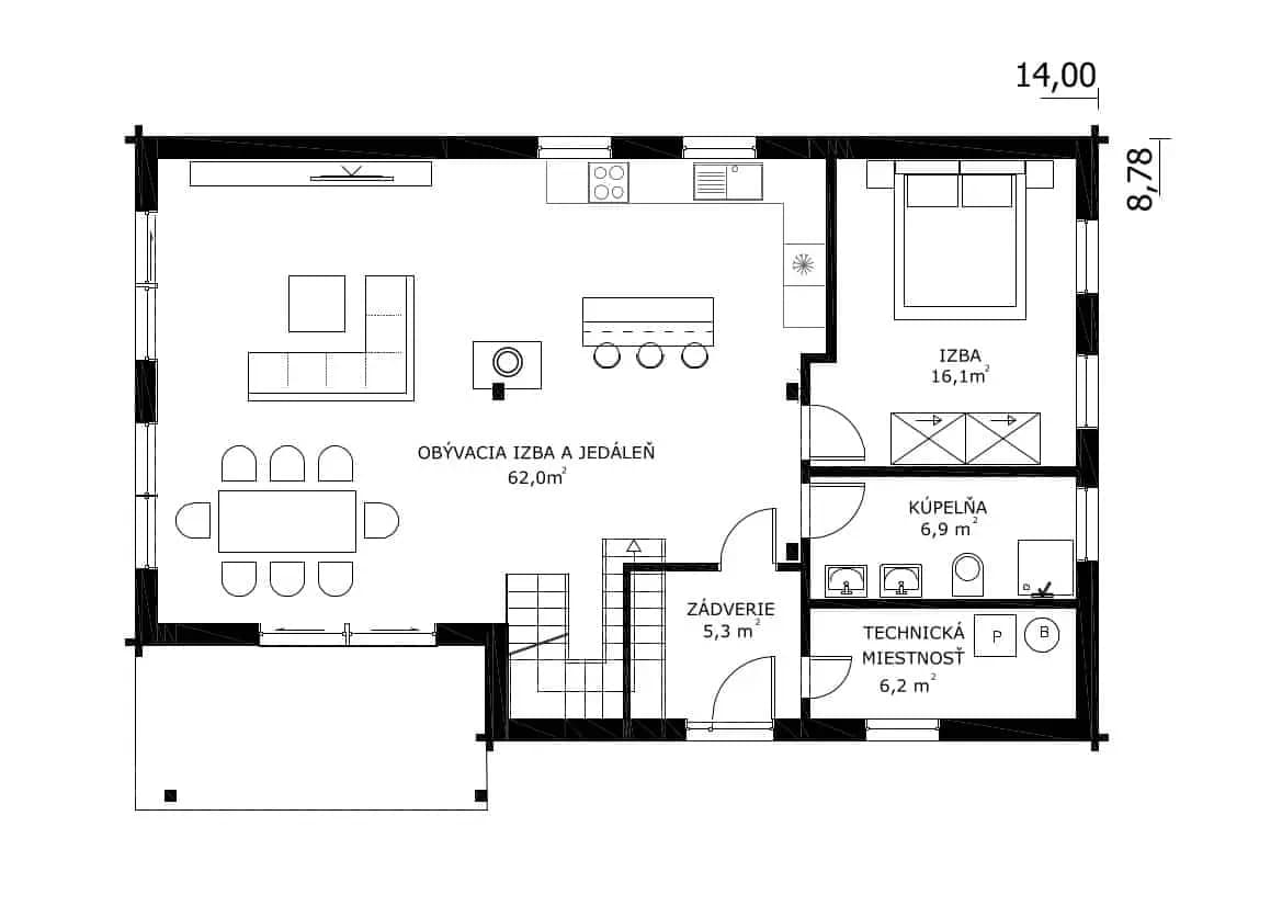
Zrubový dom Tono je moderný typ drevostavby s otvorenou galériou na poschodí. V dennej časti na prízemí zo zádveria sa priamo dostanete do obývacej izby a kuchyne. Z tohto priestoru je priami vchod do kúpeľne a vchod do spálne. Do technickej miestnosti sa dostanete zo zádveria . Na podlaží sa nachádzajú veľké priestranné izby. Na podlaží je aj kúpeľňa s WC a z jeden izieb aj priestranný šatník. Veľká galéria vám ponúka výhľad na obývací priestor.
Pôdorys a pohľady
 
Cena
Cena zahŕňa kompletnú uzavretú stavbu s:
- drevenným skeletom stavby
- drevenným krovom
- izoláciou stien a strechy
- oknami a vchodovými dverami
- strešnou krytinou
- odkvapovým systémom











