Popis stavby
MATERIÁL: SMREK
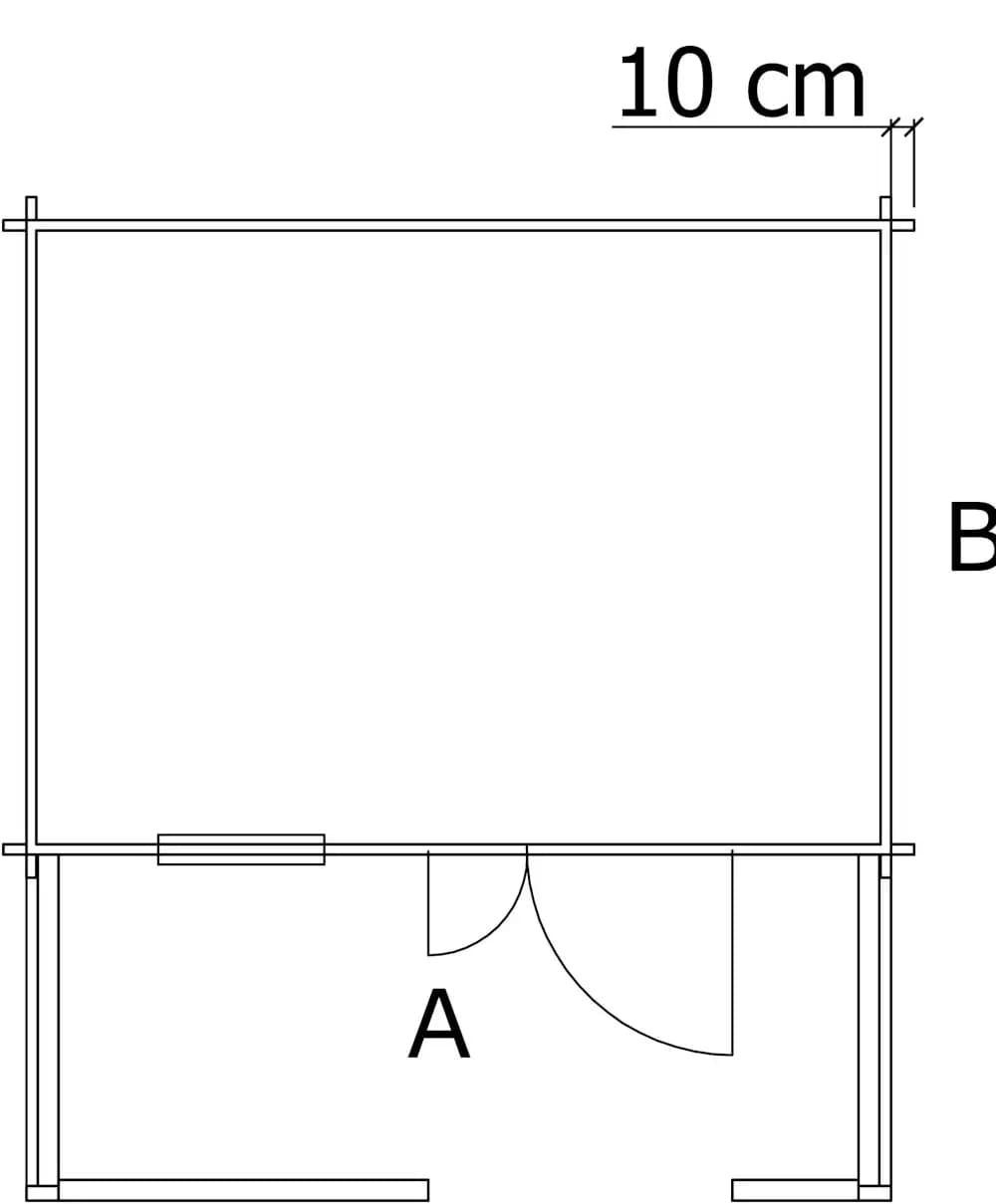
A: Výška hrebeňa strechy max.: 298 cm
B: Výška bočnej steny: 220 cm
C: Čelný presah strechy: 22 cm
D: Bočný presah strechy: 27 cm
E: Dĺžka terasy: 150 cm
Dvere: dvojkrídlové 120 x 184 cm 2/3 sklo
Okno: jednokrídlové 60 x 120 cm, pravé bez okenice
Hrúbka strešnej perodrážky: 19 mm
Hrúbka steny: 28 mm alebo 40 mm
Rozmery chatky sú vrátane presahu stien 10 cm
Pôdorys a pohľady
 




